„Bäuerliche Architektur in Gröden“
Präsentation der Bauaufnahmen der Architekturfakultät der Universität Innsbruck in einer Ausstellung im Garten der Cesa di Ladins
Im Sommer 2008 haben die beiden Architektinnen Dr. Barbara Lanz und Dr. Sonja Mitterer (bauforschung-tirol) im Rahmen eines Projektes des Museum Gherdëina 512 Höfe und Hofstellen in Gröden vor Ort erhoben und katalogisiert. Das Ergebnis dieser Bestandsaufnahme ist auf eine sechs Meter lange „Höfekarte“ grafisch wiedergegeben worden, die im November 2008 erstmals der Öffentlichkeit vorgestellt wurde und im Eingang zum Museum Gherdëina einsehbar ist.
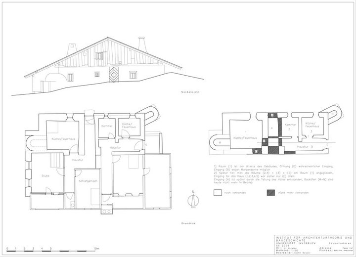
Im Sommersemester 2009 wurden vom Institut für Architekturtheorie und Baugeschichte im Rahmen des Bauaufnahmeseminars unter der Leitung von Ass. Prof. Horst Hambrusch mehrere Höfe im Raum Gröden – auf Pufels und St. Jakob - vermessen und dokumentiert.
Nach vorheriger Besichtigung und Absprache mit den Besitzern der einzelnen Objekte wurden 36 Studenten die Vermessung und Dokumentation der Höfe Rone, Pecei, Sanon, Cëbla, Mëune und Col de Flam zugeteilt. Nach den Vermessungsarbeiten vor Ort wurden im Laufe des Semesters alle erfassten Daten ausgearbeitet.
Die Ergebnisse wurden vom Architekturstudenten Martin Mairegger, der als Tutor die Bauahfnamen in Gröden begleitet hat, gesammelt, in einem Katalog zusammengefasst und im Rahmen der Langen Nacht der Museen am 19.09.2009 öffentlich vorgestellt. Darin enthalten sind auch ältere Projekte, die ebenfalls am Institut für Baugeschichte der Universität Innsbruck für die Höfe Sotanives, Corpomio, Peza und Paratoni erarbeitet wurden.
Eine Auswahl dieser Ergebnisse ist auch auf 9 Ausstellungstafeln präsentiert worden, die vor dem Museum ausgestellt sind.
Langfristig sieht das Höfe-Projekt des Museum Gherdeina den Aufbau einer Datenbank und die Einrichtung einer Forschungsstelle zu den Grödner Bauernhöfen im Museum vor. Einen Schwerpunkt des Projektes bildet weiters die Auswahl einzelner Objekte, die für detailliertere Aufnahmen, wie bauhistorische Untersuchungen, dendrochronologische Beprobungen und Vermessungen vorgeschlagen werden.
Ein Projekt des Museum Gherdëina in Zusammenarbeit mit „bauforschung-tirol“ und dem Institut für Architekturtheorie und Baugeschichte der Universität Innsbruck.






