Documentazion dla Università de Dispruch
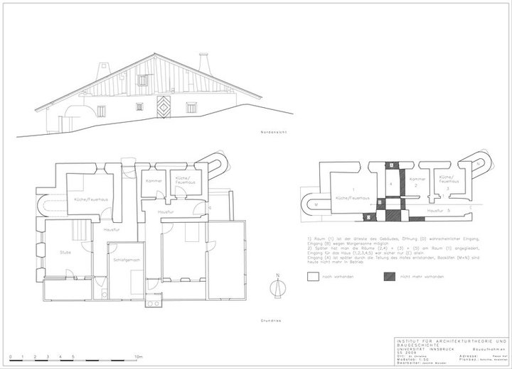
Tl semester da d’instà 2009 à la Facultà de Architetura dla Università de Dispruch (Institut für Architekturtheorie und Baugeschichte) sot ala direzion dl professëur Horst Hambrusch mesurà ju y documentà deplu mejes sa Bula y sa Sacun. Do avëi vijità i luesc y rujenà cun i patrons ti iel unit dat a 36 studënc la ncëria de mesuré y documenté cun fotografies la strutures di luesc da paur de Rone, Pecëi, Sanon, Cëbla, Mëune y Col de Flam.I resultac de chësta nrescida ie unic presentei al publich tl Museum de Gherdëina n ucajion dla Nuet longia di Museums y ie sen da udei sun tofles tl verzon dla Cësa di Ladins a Urtijëi. Sëurapro vën tlo nce presentei i resultac de mesurazions architetoniches di mejes de Sotanives y Corpomio te Sëlva, de Paratoni a S. Cristina y de Peza sa Sacun fates da studënc dla Università de Dispruch bele ti ani passei.
„Cherta di mejes“
Chësta culaburazion danter Museum de Gherdëina y la Università de Dispruch fej pert dl pruiet “cherta di mejes” metù a jì dal Museum dl d’instà 2008 cun la doi architëtes Babara Lanz y Sonja Mitterer (“bauforschung-tirol”). Ëiles òva tëut su y cataloghisà sul post dut l patrimone dla vedla architetura da paur de Gherdëina, en dut 512 mejes y ntëur 350 tublëi danter strutures che se à mantenì nchin ncueicundi y nce chëles che nen ie nia plu. l resultac de chësta prima nrescida ie unic repurtei graficamënter sun la gran „cherta di mejes“ metuda ora tla entreda dl Museum de Gherdëina tla Cësa di Ladins a Urtijëi.Singula pertes dl raion ie nce da udëi sun la cherta tacheda ora al publich te uni chemun dla valeda.
Archif digitel di mejes
Plu inant uelun cialé de publiché la cherta y de lauré ora n archif digitel per njenië ite tl Museum de Gherdëina n zënter de stude sun i mejes dla valeda. N auter pont mpurtant dl pruiet ie chël de studië plu a menut strutures singules che ie de gran valor storich-culturel o te pericul de scumparì y che unissa po’, a una cun l patrons, sotmetudes a na documentazion fotografica cun mesurazions y rilevelazions storich-architetoniches, proves per datazions dendrocronologisches y auter.Per purté daujin i resultac dla nrescides scientifiches ala jënt y mparé a cunescer plu da daujin la storia di centeneies de vita da paur che i vedli mejes à da nes cunté uelun nce lauré ora per n auter ann n program cun azions didatics per sculeies pra l luech de Peza sa Sacun en cunlaurazion cun l chemun de Urtijëi che ie patron de una partida.
L prueit sun i mejes de Gherdëina vëja nce dant la cunlaurazion cun la Lies dla Natura y Usanzes de Urtijëi y Sëlva y la Lia di paures dla valeda y vën purtà inant cun l sustenì dl Assessëur Dr. Florian Mussner tres la Region Trentino-Südtirol y di ambolc di chemuns de Urtijëi, S. Cristina y Sëlva.






